Vérin Télescopique 2 éléments FIXATION BASSE
Référence Hydrokit : V20760595BD
Informations techniques
Simple effet.
Diamètre des 2 tiges : 61 et 76 mm.
Course : 595 mm.
Entraxe fermé : 418 mm.
Fixation basse.
Palier Ø45mm
Diamètre des 2 tiges : 61 et 76 mm.
Course : 595 mm.
Entraxe fermé : 418 mm.
Fixation basse.
Palier Ø45mm
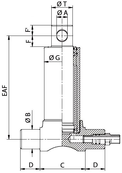
A = Ø perçage sur tige. B = Ø tourillon. C = Ø extérieur sans tourillon. D = Longueur du tourillon. T = Ø tige. G = Ø corps extérieur. F = Entraxe tige-bord de tige côté vérin. F’ = Entraxe perçage tige-bout de tige. - Pression nominale de service : 180 bar.
- Interchangeable avec d’autres marques.
- Traitement de la tige “TENIFER“ ou QPQ
- Facilement adaptable avec plusieurs types de fixation.
- Maintenance facile, fond vissé.

|
EAF (Entraxe fermé) |
Diamètre de tige 1 |
Diamètre de tige 2 |
Course |
A |
Diamètre B |
C |
D |
T |
G |
F |
F' |
Volume |
|
418 mm |
61 mm |
76 mm |
595 mm |
31 mm |
45 mm |
115 mm |
45 mm |
59 mm |
95 mm |
32 mm |
30 mm |
2,3 litres |
Caractéristiques techniques
| Nombre d'étages | 2 | ||
| Fixation | Palier Bas | ||
| Type de tête | Standard | ||
| Diamètre de tête | 59 | mm | |
| Course | 595 | mm | |
| Entre axe fermé | 418 | mm | |
| Diamètre d'axe | 31 | mm | |
| Force à 180bars | 5.5 | Tonne | |
| Volume (litres) | 2.3 | L |